Descripción
Este edificio consta de tres plantas sobrerasante y una bajo rasante en la que se ubican el aparcamiento y las instalaciones. Actualmente, el edificio está funcionando como Hotel-Restaurante de 3 estrellas.
Planta Sotano:
16 plazas de garage, hall, sala de convenciones y la zona de instalaciones (aseo-vestuario para el personal, cuarto de calderas, etc)
Planta Baja:
Restaurante, recepción del hotel, aseos, salon, administración, oficina y diez habitaciones dobles.
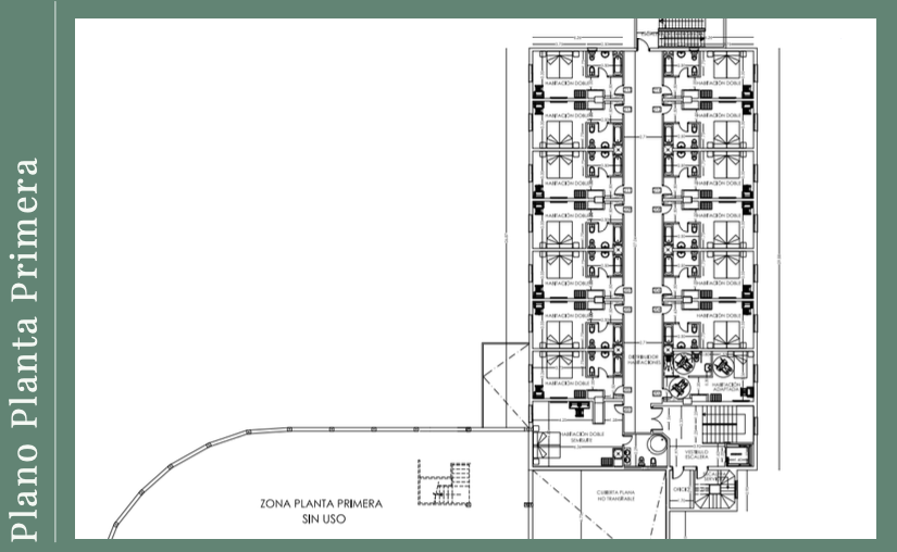
Planta Primera:
Ascensor, una habitación individual y una suite 17 habitaciones dobles
Planta Segundo:
Ascensor, una habitación individual y una suite 17 habitaciones dobles
Datos sobre la superficie:
Superficie parcela 2.589,00 m2
Superficie Total construida 2.559,43 m2
Superficie construida planta baja 753,19 m2
Superficie construida primera planta 761,39 m2
Superficie construida segunda planta 544,56 m2
Superficie construida sótano 500,29 m2
Contact
962 698 310
Detalles
Tipo de propiedad
Superficie
Edificio
2.589 m²
Property Location
Humanes de Madrid

















